服務熱線
0769-28680919
153-2293-3971

產品特點:
·大角度超薄貼片式LED,均勻性好,亮度高
·主要用于透視、輪廓成像和大幅面均勻照明
應用領域:
·機械零件尺寸測量
·連接器線路檢測
·邊緣破損檢測
·針孔檢測
·液位高度檢測
·螺絲缺陷檢測
性能參數:


產品系列選型表:

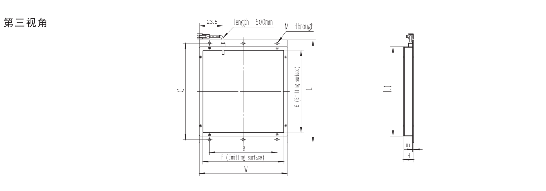
尺寸示意圖:

面光源應用實例:
鞋部件輪廓檢測由于鞋部件樣品不透光,使用面光源作背光源可以將樣品照成黑色,背景成白色,邊緣效果非常好,對比度高。

照射原理:

官方公眾號
官方抖音號Copyright ? 2022 東莞康耐德智能控制有限公司版權所有.機器視覺系統 粵ICP備2022020204號-1 聯系我們 | 網站地圖